Spicer Real Estate
  • Share
$995,000
Active Active
DC,Washington

Location 523 KENNEDY STREET, Washington, DC 20011

  • Sqft 1,580 Sqft SQFT
Basic Details Basic Details
Description

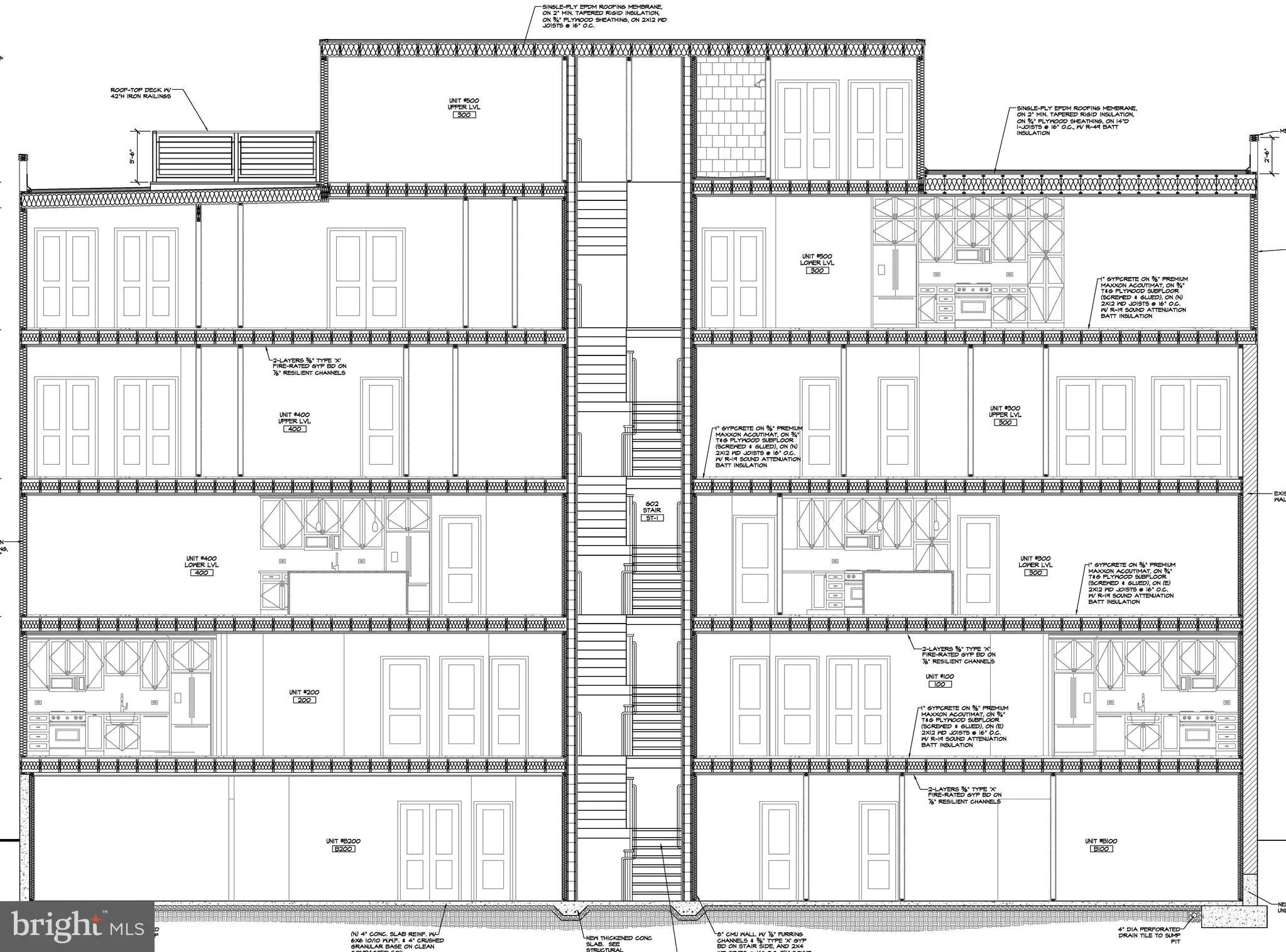
Opportunity Zone. MU-4 zoned rehab property to be delivered with stamped plans and approved permits for 7-unit buildout in Petworth on the hot Kennedy Street Corridor. Perfect for condo conversion. Approved plans are for buildout of a 5-level luxury building plus penthouse, as follows: (4) 1BR/1BA, (1) 2-level 1BR...

Opportunity Zone. MU-4 zoned rehab property to be delivered with stamped plans and approved permits for 7-unit buildout in Petworth on the hot Kennedy Street Corridor. Perfect for condo conversion. Approved plans are for buildout of a 5-level luxury building plus penthouse, as follows: (4) 1BR/1BA, (1) 2-level 1BR/2BA with Den and loft, (1) 2-level 2BR/2BA and (1) 2-level 3BR/2.5BA. This asset is located in an Opportunity Zone with lots of development in the area and is eligible for significant federal tax benefits for redevelopment investors. The architectural plans are available upon request.

Read More
Basic Details
  • Property Type: Residential
  • Listing Type: Active
  • Listing ID: DCDC2217886
  • Price: $995,000
  • Sqft: 1,580 Sqft
  • Year Built: 1923
  • Lot Area: 0.06 Acre
  • Location: US, DC, WASHINGTON-DC, Washington, PETWORTH, 20011
  • Structure Type: Interior Row/Townhouse
  • Heating System: None
  • Cooling System: None
  • Basement: Unfinished
  • Listing Status: Active
Features & Appliances
Features
  • Architectural Style: Colonial
  • Exterior Features: Other
  • Sewer: Public Sewer
Ask Agent A Question Ask Agent A Question

Address Map Address Map
MLS Addon MLS Addon
  • Office Name: Equilibrium Realty, LLC
  • Agent Name: Shanu T Okwesa
Additional Information Additional Information
  • Water Source: Public
  • Accessibility Features: None
  • Construction Materials: Brick
  • Foundation Details: Other
  • Levels: 2
  • On Market Date: 2025-08-29
Financial Financial
  • Tax Annual Amount: 30386.0
Listing Information Listing Information
  • Originating System Name: Bright
  • List Agent Mls Id: 106903
  • List Office Mls Id: DRCH1
  • MLS Status: ACTIVE-BRIGHT
  • Modification Timestamp: 2026-01-22T21:28:45Z
  • Status Change Timestamp: 2025-08-29T04:00:00Z
Rob Spicer Broker, GRI Rob Spicer Broker, GRI Spicer Real Estate

7201 Wisconsin Avenue

Mortgage Calculator
$
$ %
Years
%
$ %Per Year
$ % Per Year

$